PROCESS

White House School

A new-build early-years education building in South London expanding the campus of a Grade II Listed school

Project

  • Use: Education
  • Location: London Borough of Lambeth
  • Heritage: next to Grade II Listed building
  • Status: Completed
  • Awards
    • 2025 RIBA London Awards, Shortlisted
    • 2023 BD Education Architect of the Year
    • 2023 AJ Awards, Shortlisted
    • 2023 Dezeen Awards, Longlisted
    • 2023 Brick Awards, Shortlisted
  • Date: 2022

Team

  • Client: The White House Preparatory School and Woodentops Kindergarten
  • Planning Consultants: Tibbalds
  • Structural Engineer: Tisserin
  • Services Engineer: Ritchie and Daffin
  • Quantity Surveyor: John Underdown
  • Environmental Consultant: SHA Environmental
  • Landscape: Sprout Up
  • Photography © Will Scott
“We cannot recommend vPPR more highly… The new building has generated huge buzz for both our current and prospective parents and is a fantastic addition to our school.”
Sarah Sanger, Principal

PROCESS

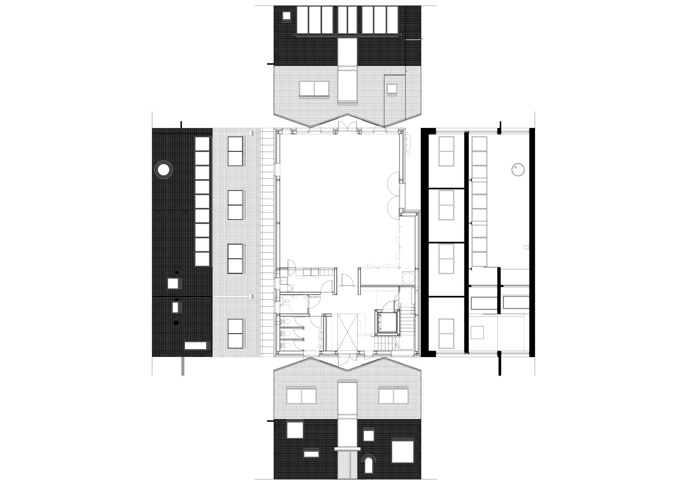
vPPR Architects has completed a new early-years education building for the White House Preparatory School and Woodentops Kindergarten in Lambeth. Located within a highly constrained site beside a Grade II Listed school building, it features a double-pitch roof and duo-tone brick design that responds to the surrounding context.

This two-and-a-half storey building includes an entrance area, hall, balcony, servery, office, four classrooms and associated sanitary provisions. The ground floor is clad in red brick and accommodates the large multi-purpose double-height hall that opens up to a wellness garden at the rear. Classrooms for focused, quiet learning are positioned on the upper level, clad in white glazed brick.

vPPR assisted the client in developing a small plot of land beside the existing school (its existing campus had already been extended to its limit), maximising its volume in a sensitive context using a split section.

The design intent was to create a building that responds to its context by referencing the local material palette and vernacular forms, whilst communicating play through a considered sequence of volumetric interiors, punctuated by playful window compositions.

 

 

Oblique axonometric
1/1

Due to the sensitive location and massing requirements, the project uses brick in innovative ways. While textured red brick, enhanced by red mortar, is used to ground the building to the site – with a glazed burgundy brick framing the entrance door to signal arrival; the white glazed brick above, which clads the upper portion of the building, allows the massing to disappear into the sky, visually reducing its presence, with a dynamic quality changing with the weather.

On the interior, the split-level section maximises the constrained site, by inserting a mezzanine level which accommodates a balcony viewing area overlooking the hall, a separate music room and additional storage space. Each interior space is generously proportioned, whether the double-height entrance and double height hall, or the classrooms with exposed soffits.

The various shapes and positions of windows have multiple functions- to frame the garden, bring light in, as well as offer a seat for pupils to take a rest. The brickwork is laid in soldier bond above all windows to give emphasis to the different-shaped openings.

Plan and unfolded elevation
1/1

The structure was built using Modern Methods of Construction, including precision manufactured steel, which minimises waste and is fast to assemble. A range of sustainability measures were implemented, including external solar shading, natural ventilation, photovoltaics and an air-source heat pump.

Onsite construction
1/4
Onsite construction
2/4
Onsite construction
3/4
Onsite construction
4/4